12 Units

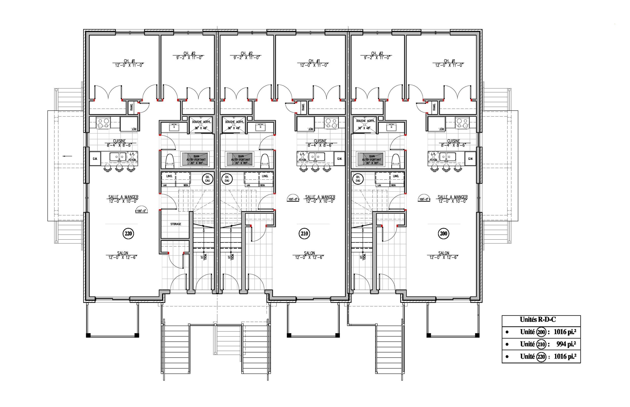
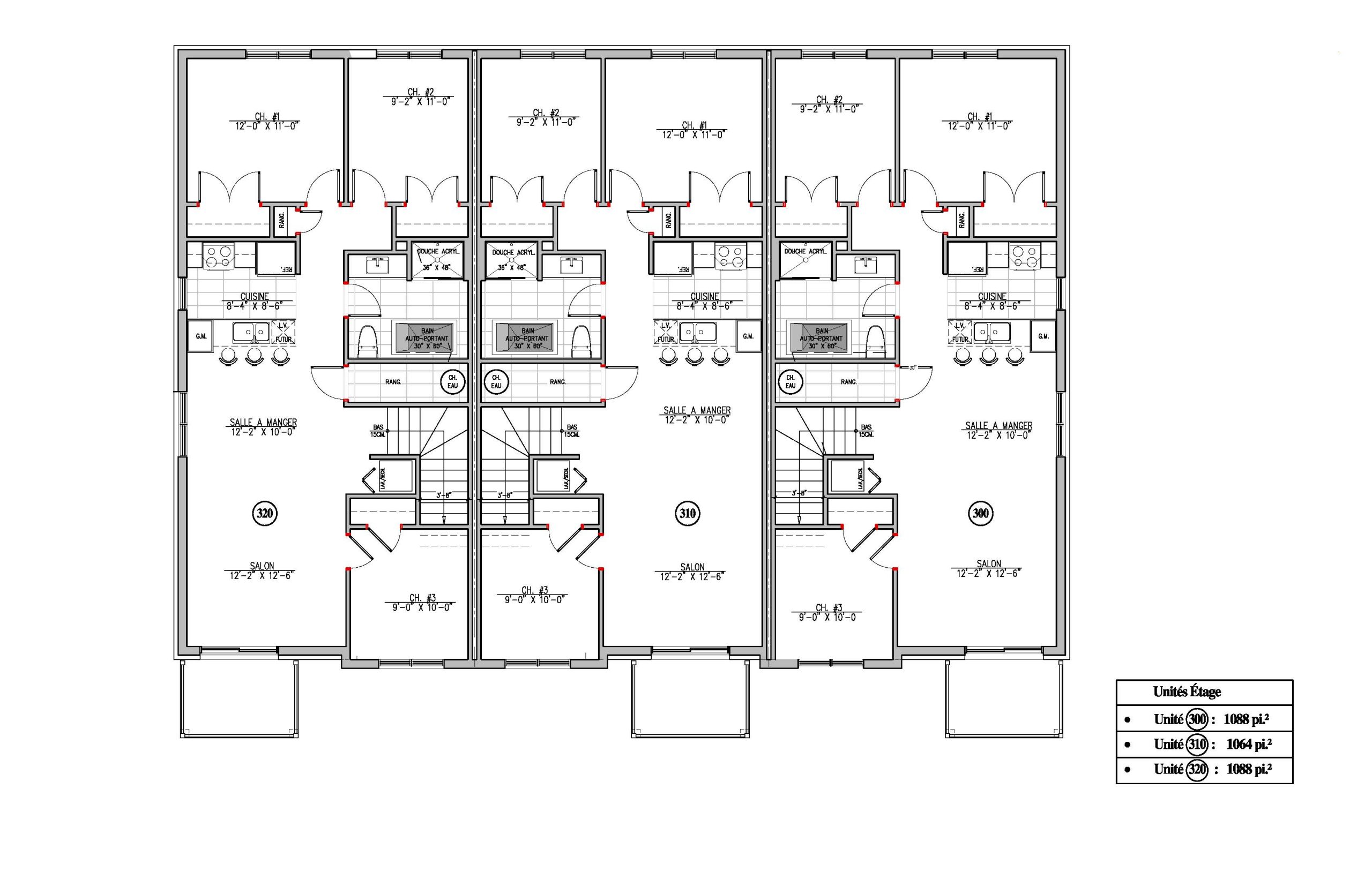
8 Units building with modern and scandinavian architecture. This luxurious building will offer you 6 units of 1 bedroom in the basement, 3 units of 2 bedrooms on the firstfloor and 3 units of 3 bedrooms on the second floor. This design will charm your tenants while offering you the best income potential.

See the description

Details

Model

12 Units

Bedrooms

21 bedrooms

Bathrooms

12 bathrooms

Area

9,446 sq. ft.

Garage

none

    Please note that our offices will be closed for the holiday season from December 19 to January 4, inclusive. We wish you a happy holiday season.

    You like this models?

    Write to us to speak to one of our housing advisors.

    This site is protected by reCAPTCHA and the Google Privacy Policy and The Terms of Service apply.

      Please note that our offices will be closed for the holiday season from December 19 to January 4, inclusive. We wish you a happy holiday season.

      You like this models?

      Write to us to speak to one of our housing advisors.

      This site is protected by reCAPTCHA and the Google Privacy Policy and The Terms of Service apply.

      Realize your dream now

      See our inventory

      Make an appointement now

      Contact us
      X