8 Units – Notre Dame

Multi Units and Condos

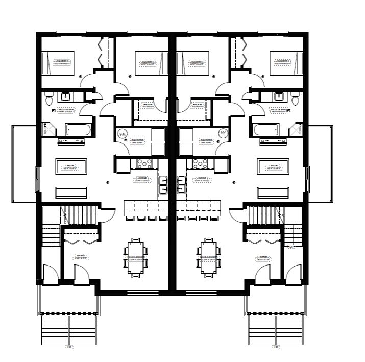
This is a lovely, 8 units building with modern architecture. It offers 4 units of 1 bedroom in the basement, 2 units of 2bedrooms on the first floor and 2 units of 3 bedrooms at the second floor. This design will charm your tenants while offering you the best income potential.

See the description

Details

Model

8 Units – Notre Dame

Bedrooms

14 bedrooms

Bathrooms

8 bathrooms

Area

7,914 sq. ft.

    Please note that our offices will be closed for the holiday season from December 19 to January 4, inclusive. We wish you a happy holiday season.

    You like this models?

    Write to us to speak to one of our housing advisors.

    This site is protected by reCAPTCHA and the Google Privacy Policy and The Terms of Service apply.

      Please note that our offices will be closed for the holiday season from December 19 to January 4, inclusive. We wish you a happy holiday season.

      You like this models?

      Write to us to speak to one of our housing advisors.

      This site is protected by reCAPTCHA and the Google Privacy Policy and The Terms of Service apply.

      Realize your dream now

      See our inventory

      Make an appointement now

      Contact us
      X