Triplex Booth

Multi Units and Condos

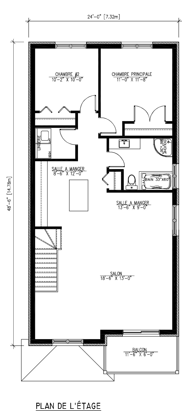
Triplex à l’architecture classique offrant 3 unités spacieuses de 1129 PC chacune. Chaque logement comporte 2 chambres à coucher, une salle de bain complète et une buanderie privée

See the description

Details

Model

Triplex Booth

Bedrooms

6 bedrooms

Bathrooms

3 bathrooms

Area

3,387 sq. ft.

Other

9 foot ceiling.

    Please note that our offices will be closed for the holiday season from December 19 to January 4, inclusive. We wish you a happy holiday season.

    You like this models?

    Write to us to speak to one of our housing advisors.

    This site is protected by reCAPTCHA and the Google Privacy Policy and The Terms of Service apply.

      Please note that our offices will be closed for the holiday season from December 19 to January 4, inclusive. We wish you a happy holiday season.

      You like this models?

      Write to us to speak to one of our housing advisors.

      This site is protected by reCAPTCHA and the Google Privacy Policy and The Terms of Service apply.

      Realize your dream now

      See our inventory

      Make an appointement now

      Contact us
      X