4 Units

Multi Units and Condos

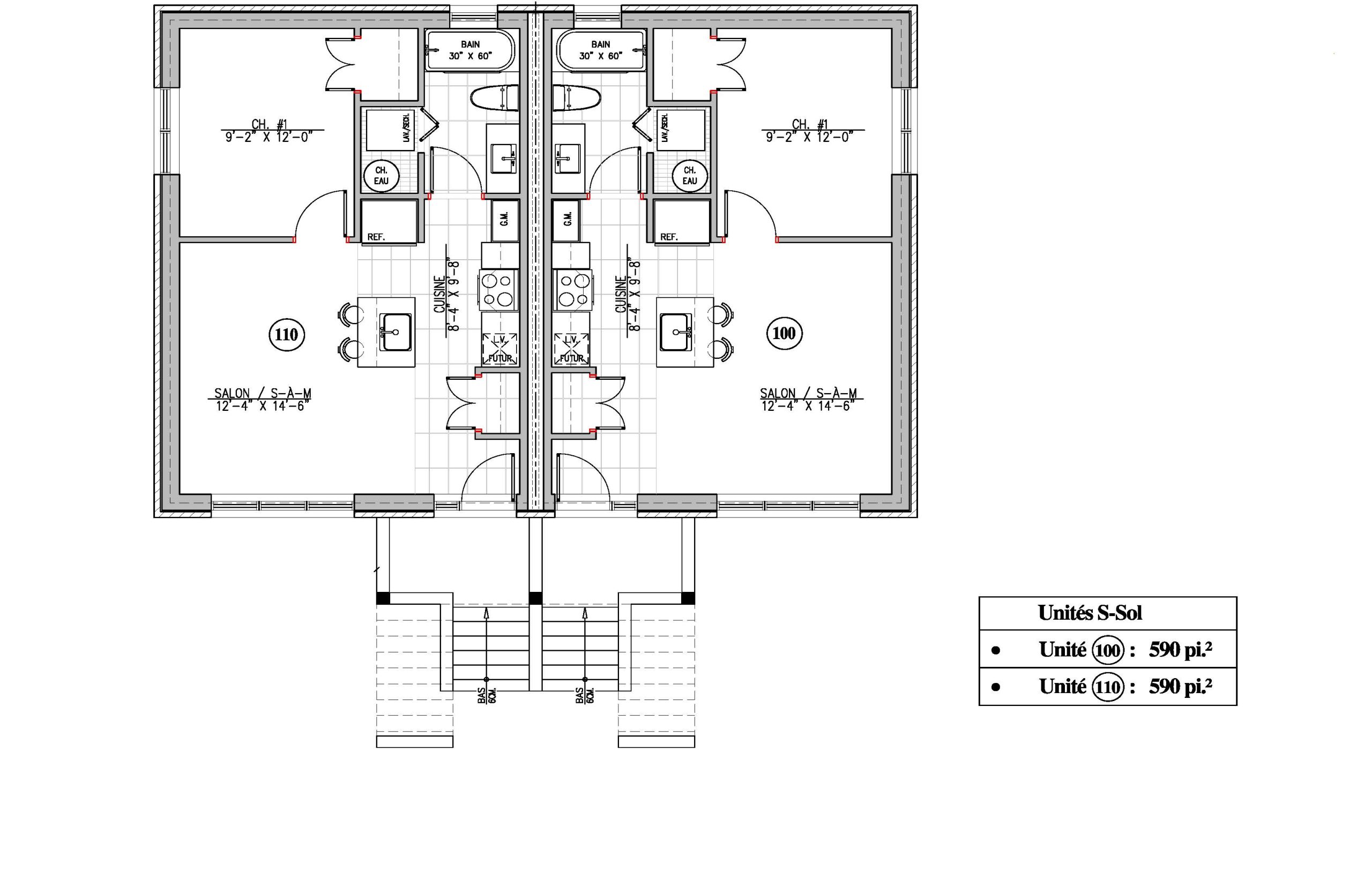
4-units building with modern Scandinavian architecture. This luxurious building offers 2 units of 1 bedroom  in the basement and 2 units of  3 bedrooms on 2 floors. These units will also benefit from a second bathroom. This design will charm your tenants while offering you the best income potential.

See the description

Details

Model

4 Units

Bedrooms

8 bedrooms

Bathrooms

6 bathrooms

Area

3,559 sq. ft.

Garage

none

    Please note that our offices will be closed for the holiday season from December 19 to January 4, inclusive. We wish you a happy holiday season.

    You like this models?

    Write to us to speak to one of our housing advisors.

    This site is protected by reCAPTCHA and the Google Privacy Policy and The Terms of Service apply.

      Please note that our offices will be closed for the holiday season from December 19 to January 4, inclusive. We wish you a happy holiday season.

      You like this models?

      Write to us to speak to one of our housing advisors.

      This site is protected by reCAPTCHA and the Google Privacy Policy and The Terms of Service apply.

      Realize your dream now

      See our inventory

      Make an appointement now

      Contact us
      X